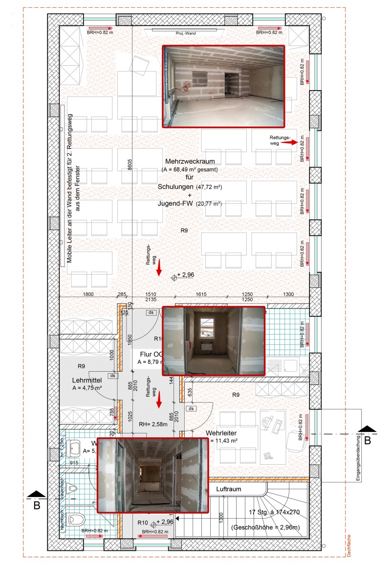
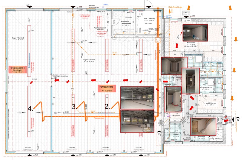
Heute möchten wir euch gerne zu einem kleinen Rundgang durch unser neues Feuerwehrgebäude mitnehmen und euch zeigen, wie es aktuell im Gebäude ausschaut. Wo sich jetzt noch zahlreiche Kabelschächte auf dem Boden durch das Gebäude schlängeln, kommen in den nächsten Tagen noch einmal ca. 18 cm Fußboden oben drauf. In der Waschhalle wurden bereits die Fliesen verlegt, jetzt folgen die Fliesenarbeiten auch in der Fahrzeughalle. In beiden Hallen werden dann zukünftig unsere Fahrzeuge auf hellgrauen Steinfliesen parken dürfen.

